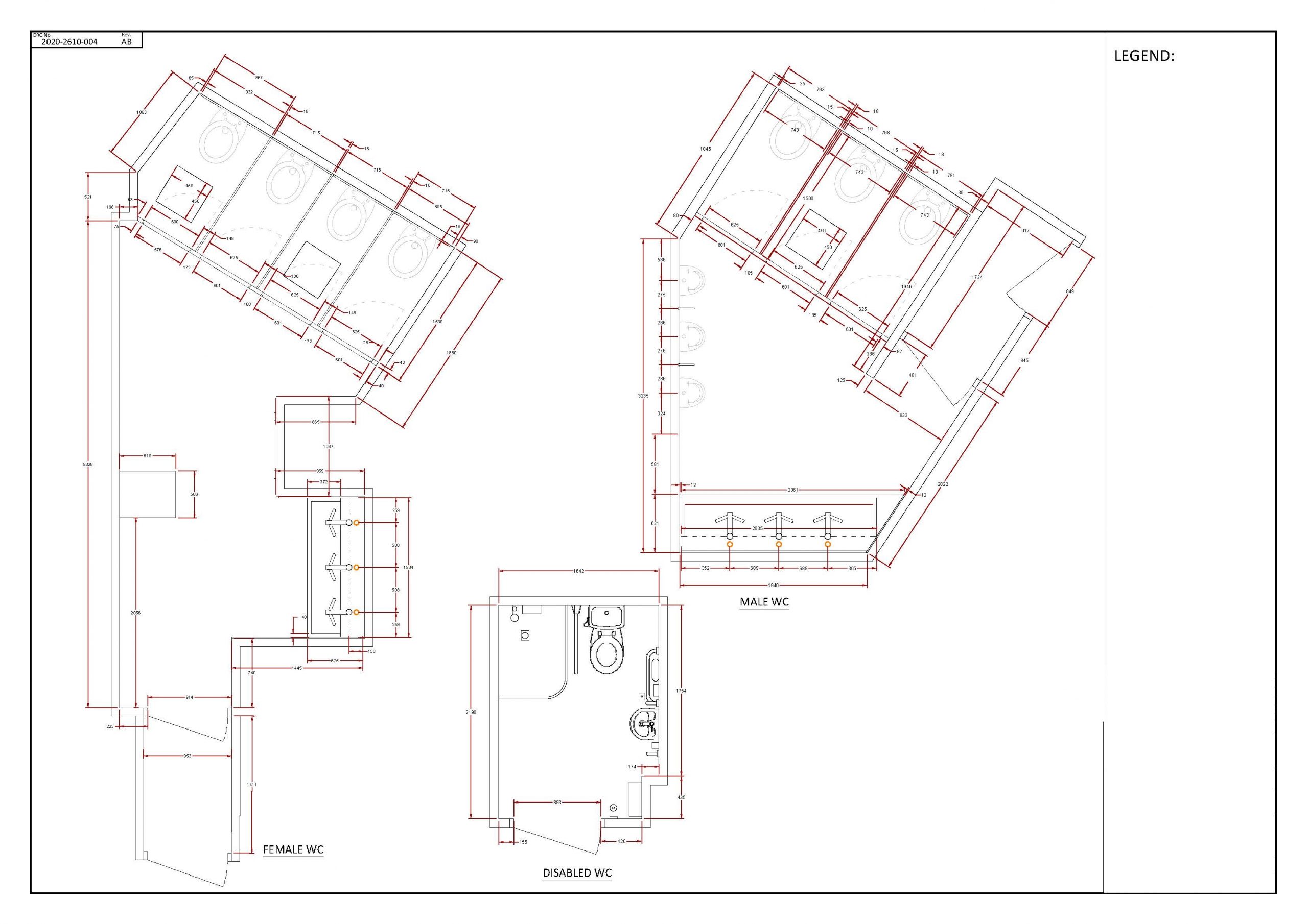
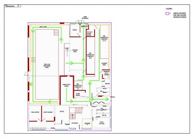
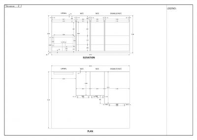
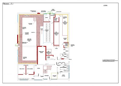
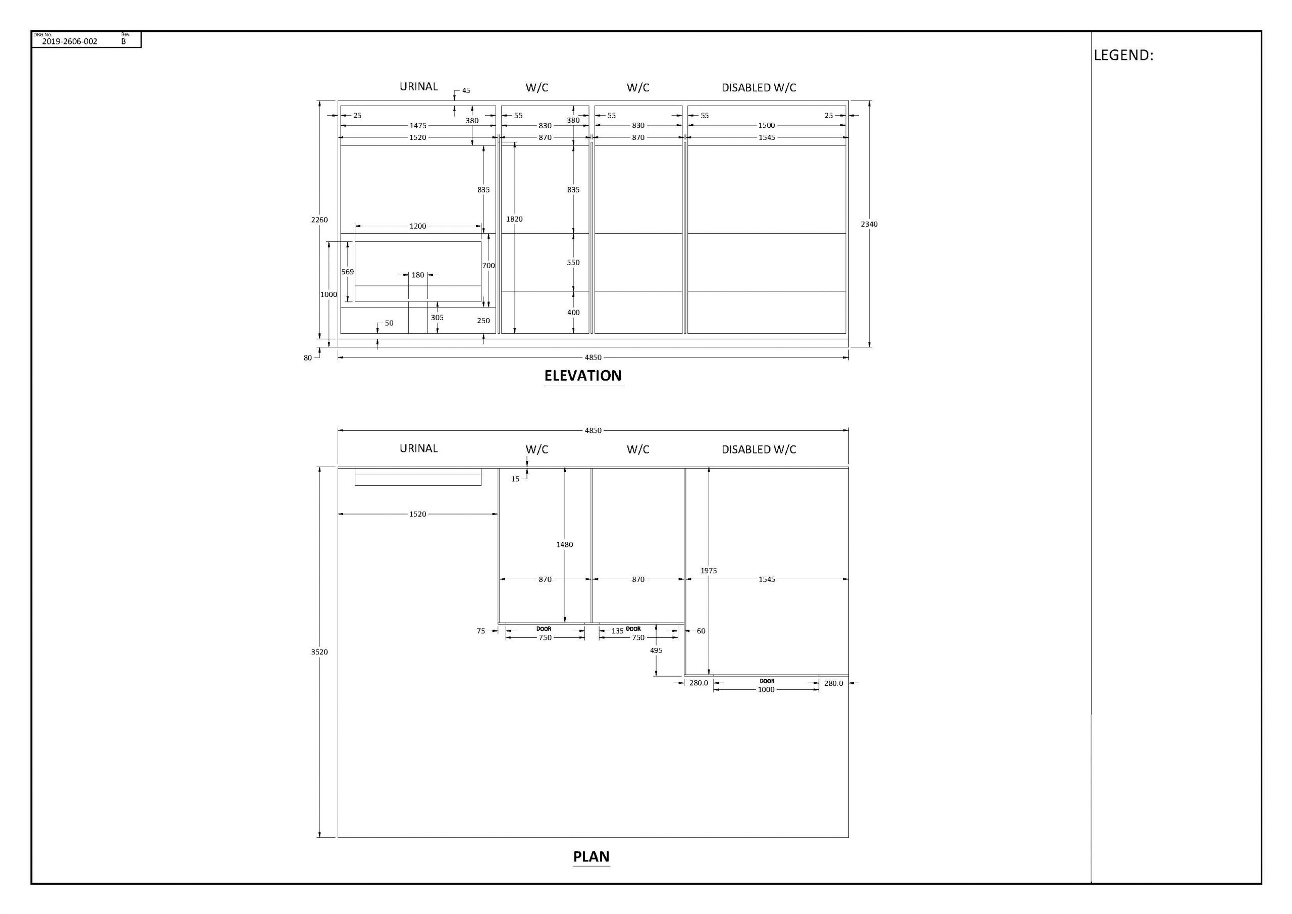
Spatial Planning Spatial Planning: Development of clear and functional spatial plans that consider both the practical and aesthetic aspects of spaces, ensuring optimal use and compliance with regulations. Next Project