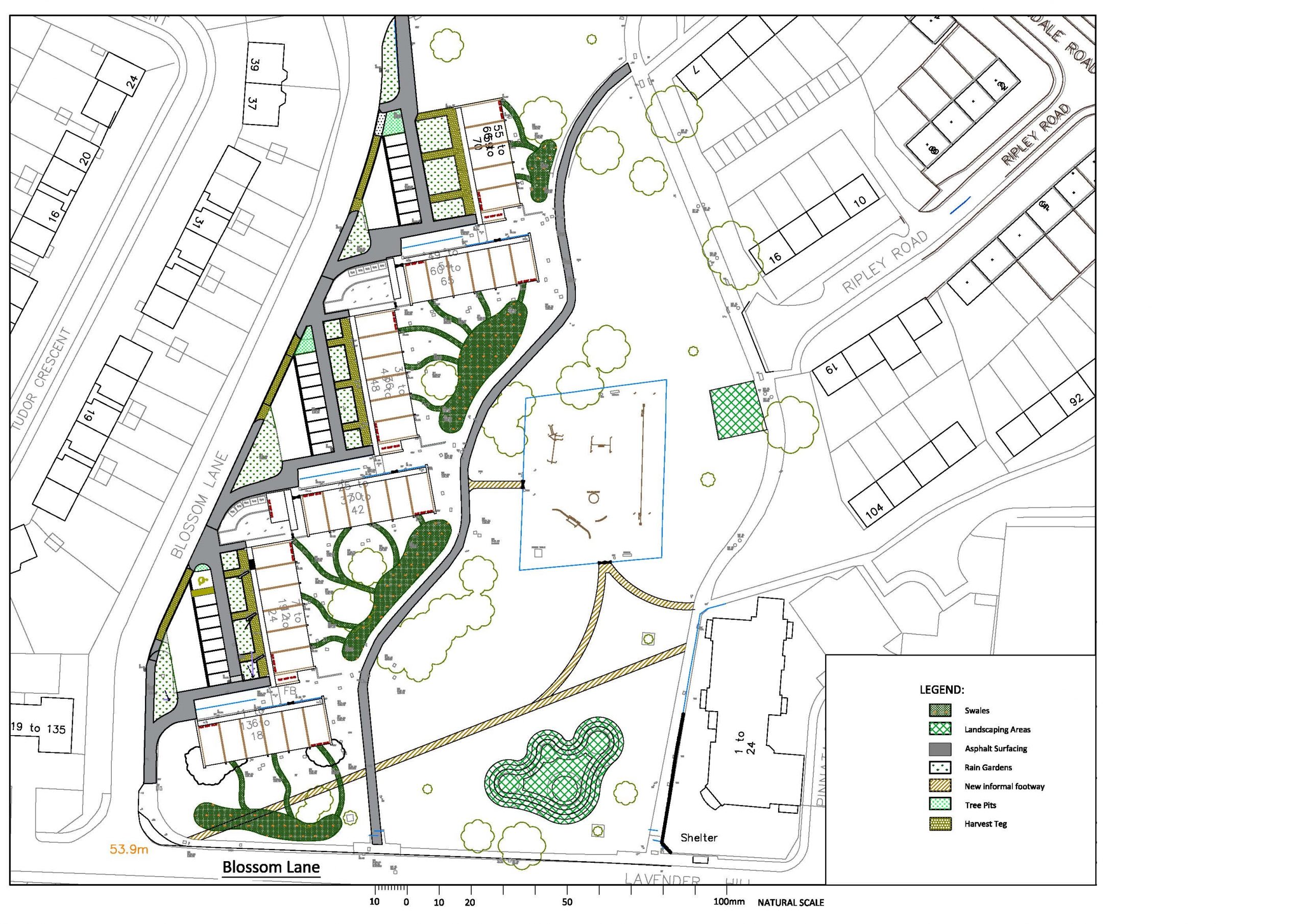
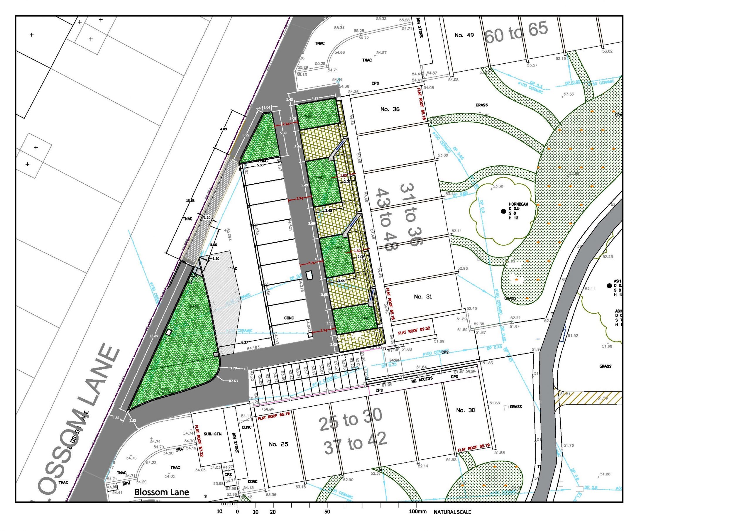
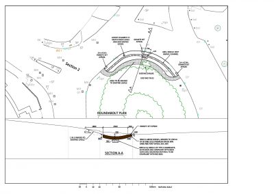
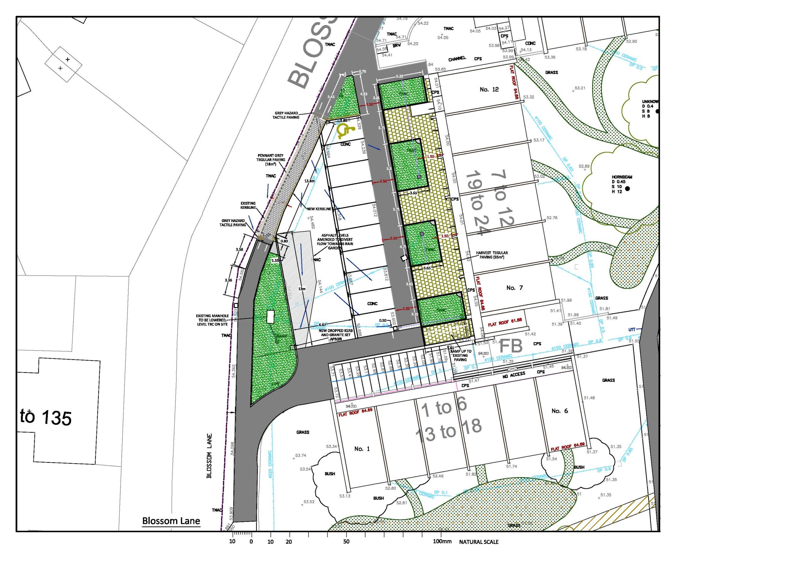
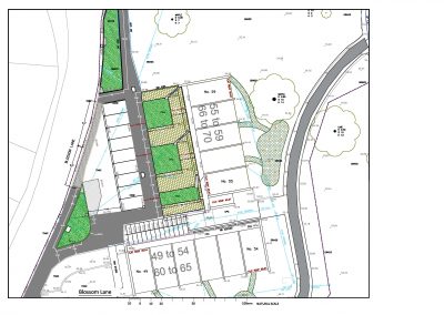
SuDS SuDS (Sustainable Drainage Systems) Design and implementation of systems that manage stormwater and reduce flood risks while enhancing local ecosystems and water quality. Next Project