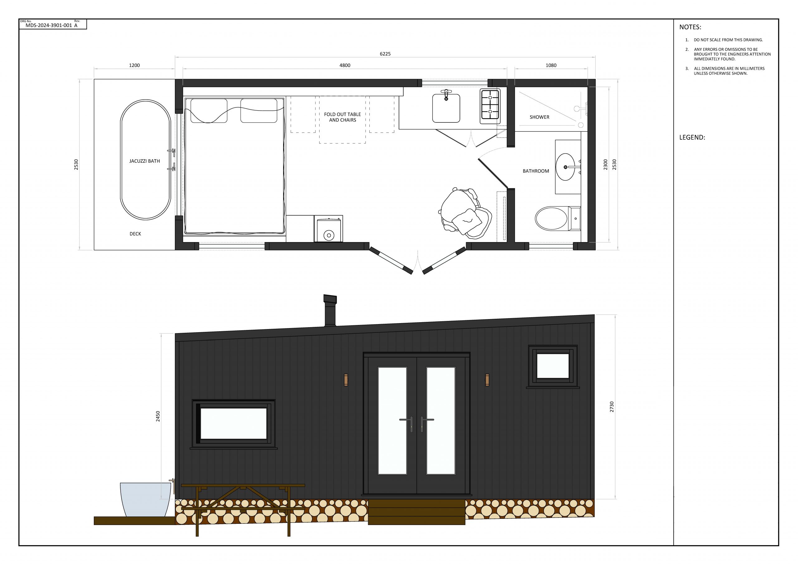
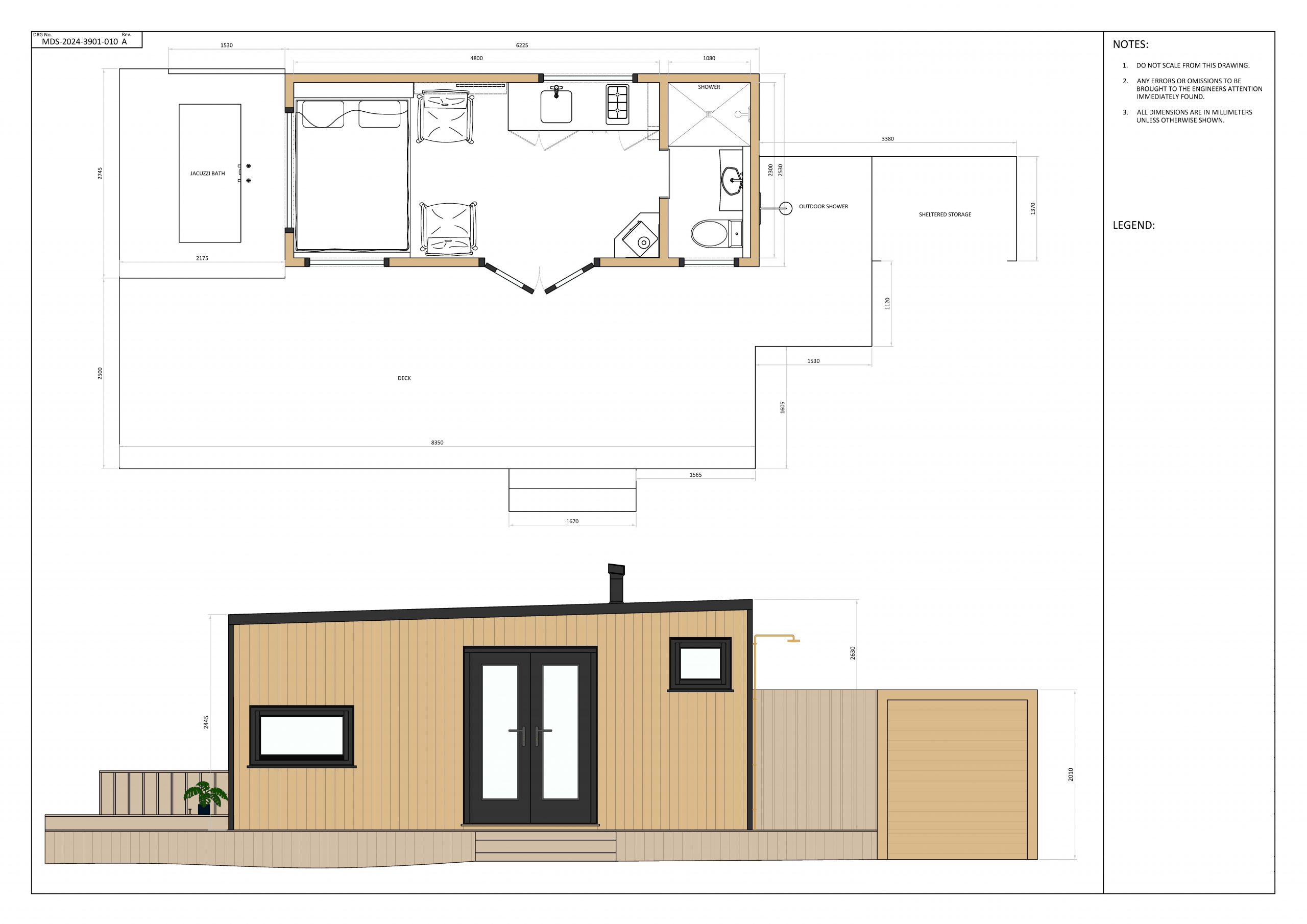
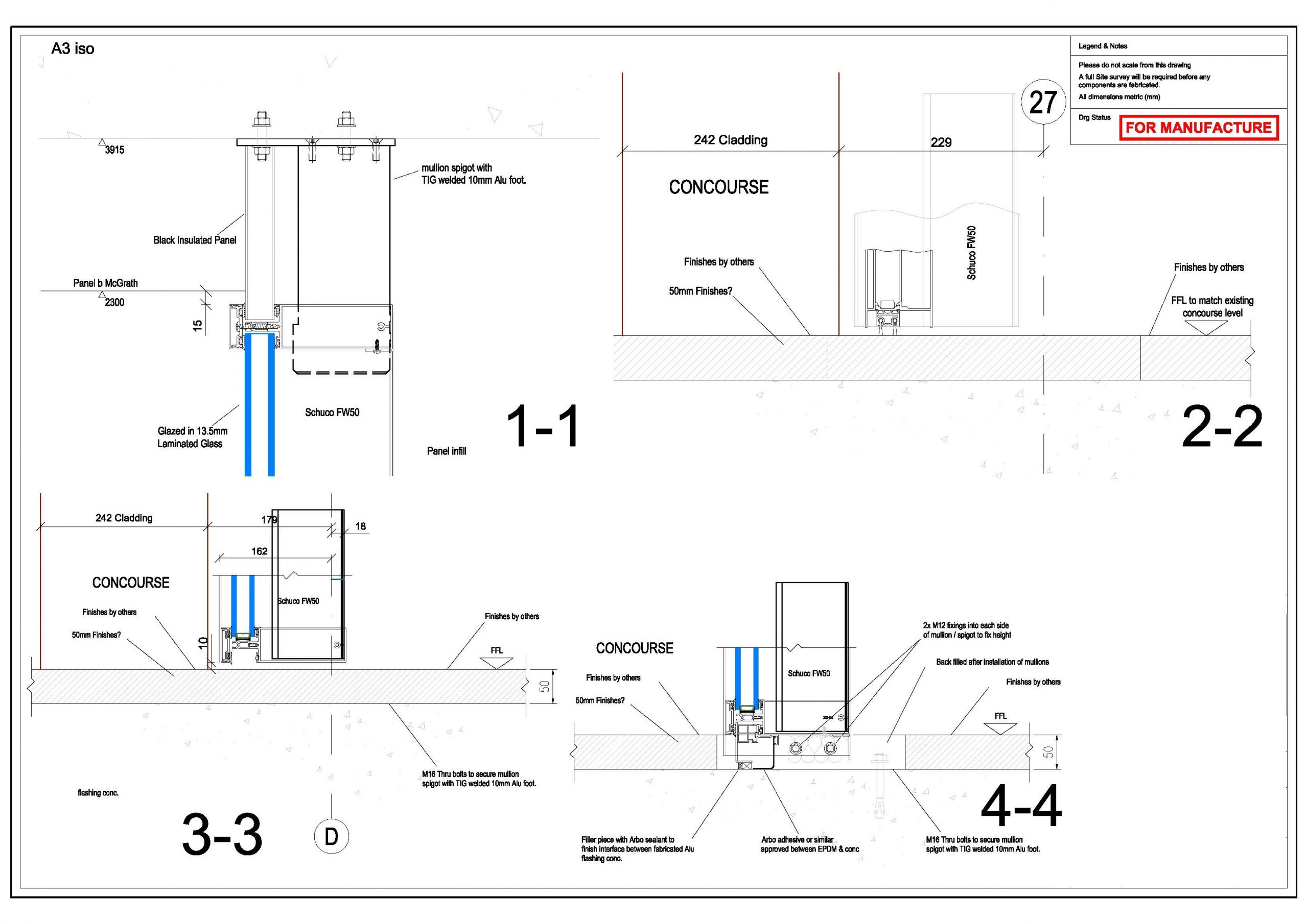
Buildings & Joinery Buildings and Joinery: Detailed drawings for building and joinery projects, including bespoke design solutions and construction specifications. Next Project